Ahmed & Sennhenn concept

Digitalisierung von Bestandsunterlagen & 3D-Modellierung

Ihre Vorteile auf einen Blick

Eine professionelle Digitalisierung Ihrer Bestandsunterlagen ist weit mehr als nur „Pläne neu zeichnen“. Sie schaffen damit die Grundlage für alle weiteren Schritte rund um Ihre Immobilie – gerade im Raum Kassel, wo viele Bestandsgebäude über Jahrzehnte verändert wurden.

Mit unseren digitalen Planungen profitieren Sie von:

  • Maximaler Planungssicherheit durch exakte und aktuelle Bestandsdaten

  • Rechtlicher Sicherheit bei Bauanträgen und Abstimmungen mit Behörden

  • Sofort nutzbaren Unterlagen für Wohnflächenberechnungen, Energieberatung und Sanierung

  • Zeit- und Kostenersparnis, da Fehler frühzeitig erkannt und vermieden werden

  • Bessere Entscheidungsgrundlagen durch klare, verständliche Visualisierungen

Kurz gesagt: Sie erhalten eine zuverlässige Basis, auf der alle weiteren Schritte effizient und sicher aufbauen.

1. Ausgangssituation – der alte Plan

Viele Gebäude in und um Kassel verfügen über Bestandsunterlagen, die nicht mehr dem heutigen Zustand entsprechen. Häufig sind nur alte Papierpläne oder eingescannten Zeichnungen vorhanden, die ungenau oder unvollständig sind.

Wir beginnen daher mit einer sorgfältigen Analyse Ihrer vorhandenen Unterlagen. Falls notwendig, führen wir ein präzises Aufmaß direkt vor Ort in Kassel und Umgebung durch. Dabei erfassen wir alle relevanten Maße und baulichen Gegebenheiten vollständig und zuverlässig.

👉 Ihr Vorteil: Sie arbeiten nicht mehr mit unsicheren Altplänen, sondern mit einer belastbaren und aktuellen Datengrundlage.

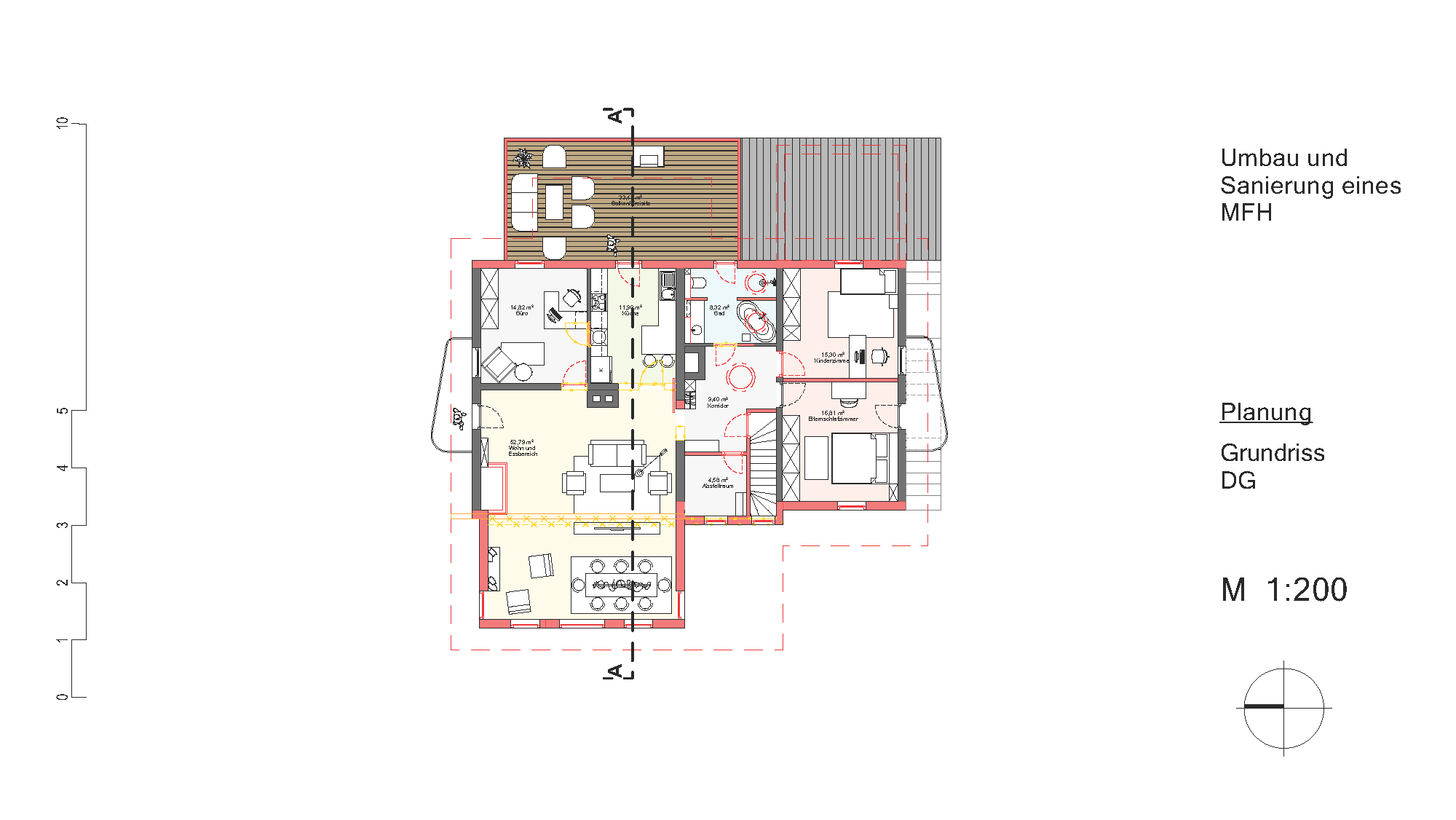
2. Neuer digitaler Plan – präzise & zukunftssicher

Auf Basis des Aufmaßes und der geprüften Unterlagen erstellen wir einen exakten digitalen Bestandsplan Ihres Gebäudes.

Dieser Plan bildet nicht nur den aktuellen Zustand ab, sondern kann auch direkt für zukünftige Maßnahmen genutzt werden. Anpassungen wie neue Raumaufteilungen oder bauliche Veränderungen lassen sich problemlos integrieren und darstellen.

Zusätzlich können aus den digitalen Plänen direkt wichtige Unterlagen erstellt werden, wie:

  • Wohnflächenberechnungen

  • Unterlagen für Bauanträge in Kassel

  • Grundlagen für Energieberatung, Statik und Sanierungsplanung

👉 Ihr Vorteil: Sie erhalten alle relevanten Dokumente aus einer Hand – effizient, aktuell und ohne zusätzlichen Aufwand. Die Dokumente dienen als Planungssicherheit für sämtliche Vorhaben in den nächsten Jahren.

3. 3D-Modell – Ihre Immobilie verständlich und greifbar

Im nächsten Schritt erstellen wir ein realitätsnahes 3D-Modell Ihres Gebäudes. Dadurch wird Ihre Immobilie nicht nur technisch erfasst, sondern auch visuell erlebbar.

Das erleichtert:

  • die eigene Vorstellung des Projekts

  • Abstimmungen mit Handwerkern und Behörden

  • die frühzeitige Erkennung von Planungsfehlern

Das 3D-Modell dient gleichzeitig als ideale Grundlage für weitere Schritte wie Sanierung, Umbau oder Energieoptimierung.

👉 Ihr Vorteil: Sie sehen Ihr Projekt, bevor es umgesetzt wird – und treffen fundierte Entscheidungen.

Optional: 3D-Druck Ihres Gebäudes

Beispiel: 3D-Druck eines Einkaufszentrums (Referenz @A&S concept)

Auf Wunsch gehen wir noch einen Schritt weiter:
Wir erstellen aus Ihrem digitalen Modell ein physisches 3D-Modell mittels 3D-Druck.

Damit wird Ihre Immobilie wortwörtlich greifbar:

  • ideal für Präsentationen und Abstimmungen

  • perfekt zur Veranschaulichung von Umbauten

  • besonders hilfreich bei komplexeren Projekten

👉 Ihr Vorteil: Sie halten Ihr Gebäude in den Händen – und schaffen ein völlig neues Verständnis für Ihr Projekt.

Perfektion in jedem Detail!

Wir freuen uns darauf, gemeinsam mit Ihnen an neuen Projekten zu arbeiten!
Kontaktieren Sie uns noch heute für ein unverbindliches Erstgespräch.