Ahmed & Sennhenn concept

Gästehaus in Kassel

ChatGPT Image 22. Dez Grundriss EG Grundriss UG Grundriss OG schnitt cc schnitt bb schnitt aa Ansicht Gebäude1 Ansicht Gebäude2 Detail

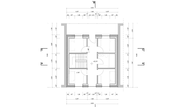
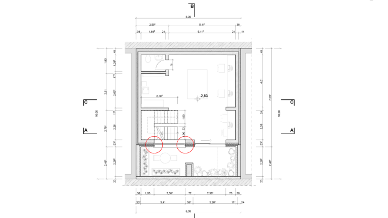
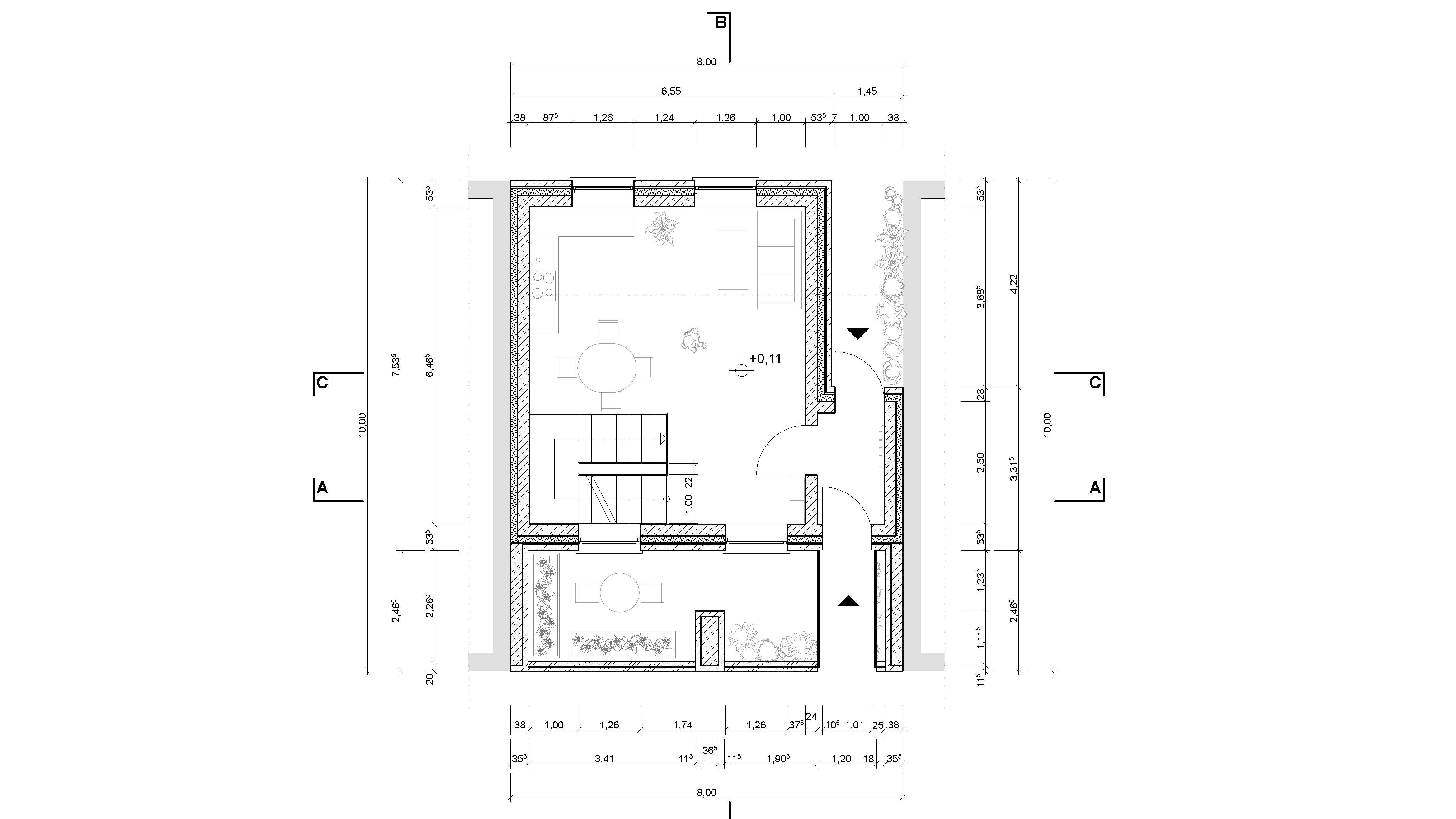
Im Rahmen des Projekts wurde ein Konzept für ein kompakt gebautes Gästehaus mit integrierten Homeoffice-Möglichkeiten in Kassel entwickelt. Das Gebäude schließt eine bestehende Baulücke zwischen zwei Bestandsgebäuden und leistet damit einen Beitrag zur städtebaulichen Nachverdichtung.

Der Entwurf sieht ein massives Gebäude mit mindestens zwei Geschossen vor, dessen zentraler Gemeinschaftsbereich sich über zwei Ebenen erstreckt. Ergänzt wird das Raumkonzept durch einen großzügigen Freibereich in Form einer Dachterrasse, Loggia oder eines Balkons, der den Bewohnern zusätzlichen Aufenthaltsraum bietet.

Das Haus ist für bis zu vier Personen konzipiert, die dort für einen begrenzten Zeitraum gemeinschaftlich leben und arbeiten können. Es vereint zeitgemäße Wohnformen mit flexiblen Arbeitsmöglichkeiten und reagiert damit auf die aktuellen gesellschaftlichen Anforderungen an gemeinschaftliches, gesundes und effizientes Wohnen im urbanen Kontext.